В электротехнике разъединитель, разъединитель или разъединитель используются для обеспечения полного обесточивания электрической цепи для обслуживания или ремонта.Они используются только для разрыва цепи и часто встречаются в распределительных сетях и подстанциях, где для регулировки или ремонта необходимо отключить источник питания машин.Разъединители могут быть с ручным или моторным приводом и могут быть соединены с заземлителем для заземления части, которая была изолирована от системы, для обеспечения безопасности оборудования и работающего на нем персонала. Высоковольтные разъединители используются на электрических подстанциях для позволяют изолировать аппаратуру, такую как автоматические выключатели, трансформаторы и линии передачи, для обслуживания.Разъединитель обычно не предназначен для нормального управления цепью, а только для защитного отключения.В отличие от выключателей нагрузки и автоматических выключателей, в разъединителях отсутствует механизм гашения электрической дуги, возникающей при электрическом разрыве проводников, по которым текут большие токи.Таким образом, это устройства без нагрузки с очень низкой отключающей способностью, предназначенные для размыкания только после того, как ток был прерван каким-либо другим устройством управления.
| штат: | |
|---|---|
РХ-Б-33
Краткое содержание
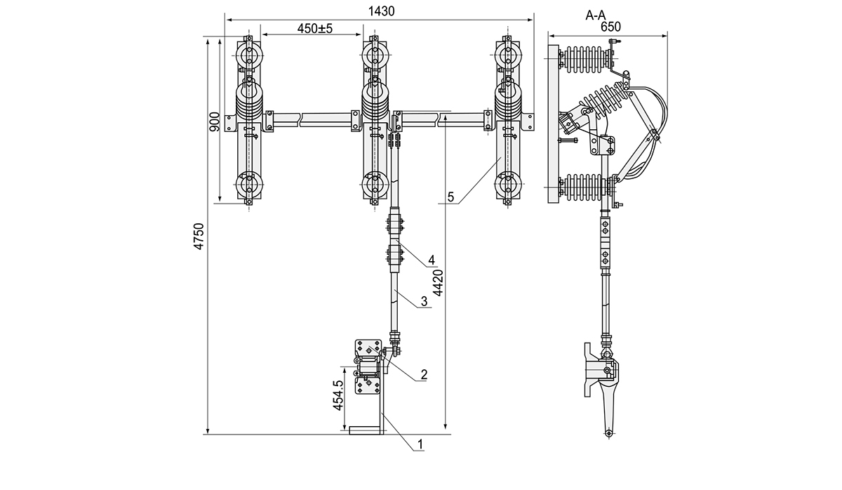
Наружный разъединитель переменного тока 11кВ/400А-33кВ/600А используется в 3-х фазной сети переменного тока 50/60Гц, используется для включения и выключения при напряжении без нагрузки.Это относится к стандарту IEC.МЭК60964: 1996, МЭК62271-102:2002
Техническая спецификация
Размер контура
Краткое содержание
Наружный разъединитель переменного тока 11кВ/400А-33кВ/600А используется в 3-х фазной сети переменного тока 50/60Гц, используется для включения и выключения при напряжении без нагрузки.Это относится к стандарту IEC.МЭК60964: 1996, МЭК62271-102:2002
Техническая спецификация
Размер контура
Керамические изоляторы, в основном состоящие из силиката алюминия, являются важнейшими компонентами воздушных линий электропередачи и распределения электроэнергии. Их долговременная надежность подвергается сомнению из-за стрессовых факторов окружающей среды, приводящих к ухудшению производительности. В этой статье анализируются фундаментальные механизмы старения керамических изоляторов с упором на ультрафиолетовое (УФ) излучение и накопление загрязнений. В нем также исследуются последние достижения в области технологий функциональных покрытий, предназначенных для смягчения этих эффектов, тем самым продлевая срок службы и обеспечивая устойчивость сети.
На протяжении десятилетий основная задача ограничителя перенапряжения оставалась неизменной: защищать электрооборудование от переходных перенапряжений, вызванных ударами молнии или коммутационными операциями, путем обеспечения пути с низким сопротивлением к земле и быстрого восстановления нормальной работы системы. Однако средства достижения этой миссии претерпевают радикальные изменения. Под влиянием требований современных электросетей – растущей интеграции возобновляемых источников энергии, цифровизации и потребности в большей надежности – технология разрядников выходит за рамки своей традиционной пассивной роли и переходит в эпоху интеллектуальных, адаптивных и высоконадежных компонентов.
Изолирующие выключатели, также известные как разъединители или изоляторы, являются основными компонентами электроэнергетических систем. Их основная функция — обеспечить видимую точку разрыва изоляции, обеспечивая безопасное обслуживание и ремонт последующего оборудования. В отличие от автоматических выключателей, они не предназначены для прерывания тока нагрузки или тока повреждения. Однако их надежная работа — открытие и закрытие по команде — имеет решающее значение для безопасности, гибкости и доступности системы.
Предохранители, как важнейшие, но часто игнорируемые устройства пассивной защиты, имеют основополагающее значение для электробезопасности. Их надежная работа зависит от целостности изолирующих поверхностей и плавкого элемента. В этой статье рассматриваются два распространенных режима отказа: перекрытие от поверхностного загрязнения и внутреннее старение/деградация. Мы предоставляем подробный технический анализ механизмов, описываем передовые и практичные методы идентификации, а также предписываем протокол систематического обслуживания для повышения надежности системы и предотвращения непредвиденных простоев.
Глобальный переход к интеллектуальным сетям представляет собой фундаментальный сдвиг в том, как мы генерируем, распределяем и потребляем электроэнергию. Интеллектуальные сети, характеризующиеся двунаправленным потоком энергии, глубокой интеграцией распределенных энергетических ресурсов (DER), таких как солнечная и ветровая энергия, развитая инфраструктура измерения (AMI) и анализ данных в реальном времени, требуют нового поколения защитных устройств. Среди них скромный предохранитель, являвшийся краеугольным камнем электрозащиты на протяжении более столетия, претерпевает глубокую технологическую трансформацию. Будущее технологии предохранителей заключается в превращении простого, жертвенного защитного компонента в интеллектуальный, адаптивный и богатый данными сетевой актив.
На протяжении десятилетий основная задача ограничителя перенапряжения оставалась неизменной: защищать электрооборудование от переходных перенапряжений, вызванных ударами молнии или коммутационными операциями, путем обеспечения пути с низким сопротивлением к земле и быстрого восстановления нормальной работы системы. Однако средства достижения этой миссии претерпевают радикальные изменения. Под влиянием требований современных электросетей – растущей интеграции возобновляемых источников энергии, цифровизации и потребности в большей надежности – технология разрядников выходит за рамки своей традиционной пассивной роли и переходит в эпоху интеллектуальных, адаптивных и высоконадежных компонентов.
Ограничители перенапряжения распределительных линий (DLSA) служат важными защитными устройствами, установленными в воздушных распределительных системах, обычно с номинальным напряжением от 1 до 38 кВ. Их основной функцией является защита электрооборудования, трансформаторов и инфраструктуры от переходных перенапряжений, вызванных ударами молнии, коммутационными операциями и другими электрическими помехами.
МОСКВА, РОССИЯ – Со 2 по 4 декабря 2025 года компания Zhejiang Haivo успешно приняла участие в Международной выставке электросетевого оборудования в России, представив свои последние инновации в области электрозащиты и технологий распределения электроэнергии.
Выключатели с выпадающими предохранителями являются важнейшими компонентами воздушных распределительных систем, обеспечивающими защиту и изоляцию от сверхтоков. Однако длительное воздействие окружающей среды, электрических и механических воздействий приводит к старению, что снижает производительность и надежность. В этой статье рассматриваются основные механизмы старения и излагаются эффективные стратегии профилактики и обслуживания для продления срока службы и обеспечения безопасности системы.
Системы наружных высоковольтных вилок и розеток (обычно от 1 до 52 кВ) представляют собой сложные инженерные решения, предназначенные для безопасного и надежного подключения к электросети в сложных условиях. Эти разъемные разъемы обеспечивают гибкое распределение электроэнергии, сохраняя при этом целостность системы в коммунальных сетях, промышленных установках и приложениях, использующих возобновляемые источники энергии. В отличие от низковольтных аналогов, высоковольтные разъемы требуют пристального внимания к контролю электрического поля, координации изоляции и защите окружающей среды.
Электронное письмо:jonsonchai@chinahaivo.com
WeChat: +86 13587716869
WhatsApp: +86 13587716869
Тел: 0086-577-62836929.
0086-577-62836926.
0086-13587716869.
0086-15957720101.
Если у вас есть какие-либо вопросы, вы можете связаться с нами через форму.